Werkstatt- und Montagepläne
Präzision beginnt in der Planung
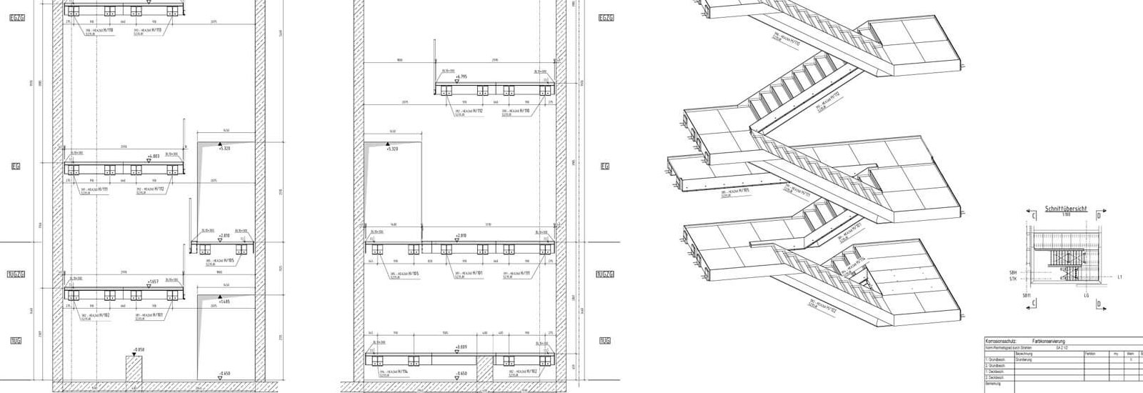
Bevor auf der Baustelle der erste Träger sitzt, entsteht in unserer Konstruktion bereits ein präzises Abbild der Realität. Unsere Werkstatt- und Montagepläne sind nicht nur Zeichnungen sie sind das Fundament eines reibungslosen Projekts. Mit höchster Sorgfalt, digitaler Präzision und echtem Verständnis für die Praxis erstellen wir Planunterlagen, die sowohl in der Fertigung als auch auf der Baustelle überzeugen.
Aus Gedanken wird Geometrie in 3D, digital und realitätsnah
Unsere erfahrenen Konstrukteure modellieren Ihre Stahlbaukonstruktion zunächst in einem exakten 3D-BIM-Modell mit Tekla Structures, dem internationalen Standard für Building Information Modeling im Stahlbau. Daraus entstehen detaillierte Übersichtspläne, die in enger Abstimmung mit Statikern, Architekten und Auftraggebern durch den ersten Freigabeprozess gehen.
Nach Freigabe übernehmen wir alle Anpassungen und erstellen präzise Einzelteilzeichnungen, Zuschnittspläne und Montageunterlagen für den zweiten Freigabeprozess etwa durch den Prüfingenieur. Was wir liefern, passt: auf den Bildschirm, in der Fertigung und später millimetergenau auf der Baustelle.
Unsere Leistungen im Bereich Werkstatt- und Montageplanung
- 3D-Konstruktion in Tekla Structures (BIM)
- Erstellung von Übersichtsplänen für den ersten Freigabeprozess
- Detaillierte Einzelteilzeichnungen & Stücklisten
- Montagepläne mit Positionskennzeichnung & Einbaureihenfolge
- Prüfungs- & Freigabeläufe inklusive Anpassung der Pläne
- Exportfähige Daten für CNC-gesteuerte Fertigung
Warum Planunterlagen von uns?
- Erfahrene Konstrukteure mit Verständnis für Praxis & Norm
- Nahtlose Zusammenarbeit mit Statik, Architektur & Fertigung
- Fehlervermeidung durch BIM-gestützte Planung
- Übersichtliche, klar strukturierte Pläne, die auf der Baustelle funktionieren
- Höchste Passgenauigkeit, vom Modell bis zum realen Bauteil
- Gute Planung spart Zeit, Kosten und Nerven.
